Гибкая производственная система

Гибкая производственная система
Гибкая производственная система
миниатюра
миниатюра
Детали: Сталь, нержавеющая сталь Вес станочной паллеты до 1500
Система управления: Fastems MMS5
Подача материала: Станции загрузки/выгрузки LSF и MSC
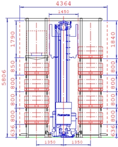
Cтаночные паллеты мм: 500 x 500 х 1200  800 – 12 мест
Хранение материала мм: Паллеты 800 x 1200 1000 кг 162 места высотой 550
Уровни хранения: 5